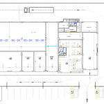
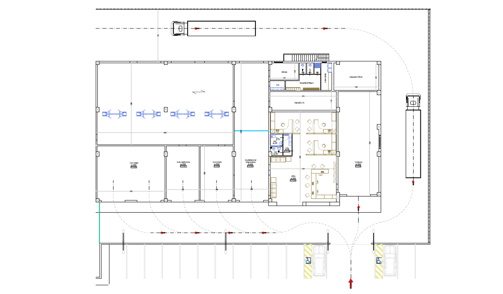
Helpauto® si distingue da tutti gli altri poiché, ha al suo interno, uno studio tecnico in grado di progettare un’officina per le riparazioni di autovetture. Seguendo la normativa vigente, siamo in grado di proporre soluzioni ottimali per dimensioni aziendali, organizzazioni degli ambienti di lavoro fino ad arrivare a tutto l’allestimento.
Progettare bene una struttura come un’officina meccanica richiede studi particolari con un’attenta analisi delle norme. Saper disporre bene le attrezzature, rispettando tutti gli standard tecnici richiesti, influisce in modo notevole sull’efficienza, sulla produzione, sulla sicurezza e sulla qualità dell’ambiente di lavoro.
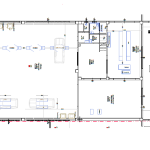
Un’officina progettata a regola d’arte, si rivela un ambiente organizzato in maniera così razionale da garantire un ambiente confortevole e sicuro, sia per chi ci lavora sia per chi ne fa visita. Il progettista dovrà valutare con la massima attenzione tutte le operazioni svolte all’interno dell’ambiente di lavoro in modo da ottimizzare al massimo tutti i processi lavorativi. La soddisfazione dei dipendenti e clienti finali passa, anche, attraverso l’organizzazione degli spazi.
Per ottenere ambienti confortevoli e adatti a soddisfare le esigenze degli occupanti, oltre a una mera questione dimensionale, occorre valutare attentamente anche i materiali da utilizzare sulle superfici, oltre l’organizzazione dei servizi che devono essere garantiti ai dipendenti per migliorare le condizioni lavorative. Solo in questo modo è possibile procedere con un giusto e corretto dimensionamento e un’organizzazione tale da rendere meglio fruibile l’opera, sia da parte dei lavoratori che da parte dei clienti.





